Haugalandsveggen skal bygges ut – klatremiljøet på Haugalandet løftes til nye høyder!

Haugalandsveggen skal bygges ut i et stort og ambisiøst prosjekt som vil styrke klatremiljøet og idrettstilbudet på Haugalandet enormt! 🧗‍♀️✨

Utbyggingen er et samarbeid mellom Haugaland Klatrelag og Haugesund Turnforening, og sammen skal vi skape et moderne, inkluderende og inspirerende anlegg – forhåpentligvis klart til bruk i løpet av 2028.

Illustrasjon av klatreanlegget fra sør-vest.

Hva kan vi glede oss til?

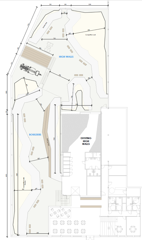
  • Større buldrehall med plass til enda flere ruter, utfordringer og klatrelek.
    1000 m2 buldring med alle typer buldrevegger, Kilter, Tension og Moon board, spray-walls og mere til!

  • Utvidet tauklatring – Alle typer vegger og brattheter, flere linjer, og mer plass til kurs og trening.

  • Felles treningsrom for styrke og bevegelighet, delt mellom de to klubbene.

  • En koselig kafé i inngangspartiet – perfekt for en pause med kaffe og klatreprat.

  • Et anlegg som gir rom for vekst, rekruttering og fellesskap, både for barn, ungdom og voksne.

Første etasje med inngangsparti og kafe, buldring, ny og gammel tauklatring.

Andre etasje med buldring, barnebuldring, ny og gammel mesanin med autobelay og kursvegger, «treningsrom» (med Kilter-board, spray-walls, campus etc).

Dette blir ikke bare en utvidelse av vegger og gulv – det blir et løft for hele miljøet. Et sted hvor vi kan dyrke klatreglede, bygge vennskap og heie hverandre opp – bokstavelig talt.

Vi gleder oss enormt til å følge utviklingen framover og håper du blir med på reisen!

Følg med her på nettsiden og i sosiale medier – vi kommer til å dele både skisser, byggenyheter og fremdrift underveis.

La oss klatre sammen inn i framtiden! 💪🧗‍♂️

Forrige
Forrige

Åpningstider i påsken

Neste
Neste

HKL har ny nettside!